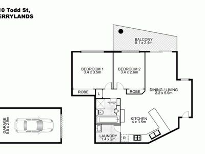
This modern 2 bedroom unit located in Merrylands features the following:
- 2 bedrooms (main with built-in)
- Huge lounge & dining area
- Modern kitchen with plenty of cupboard space
- Renovated bathroom
- Like new carpet throughout
- Large balcony off lounge
- Internal laundry
- Lock up garage
- Located close to local schools and walking distance to T- Way
VIEWINGS: As advertised or by private appointment - please contact our office on 9759 1300 or [email protected] to make an appointment.
HOW TO APPLY: Easiest way is through www.ralphfirst.com.au (our website) and clicking on the "Apply Online" button on the right of the page in the property listing. Applications can also be made via www.1form.com.au (1form). We also accept paper applications in person at our office or through [email protected].
PLEASE NOTE: Certain properties are advertised with photos that include furnishings which may or may not be included with the property. We recommend the property is inspected prior to an application being made, however this is not essential. Any queries relating to the property need to be raised prior or at the time of making an















