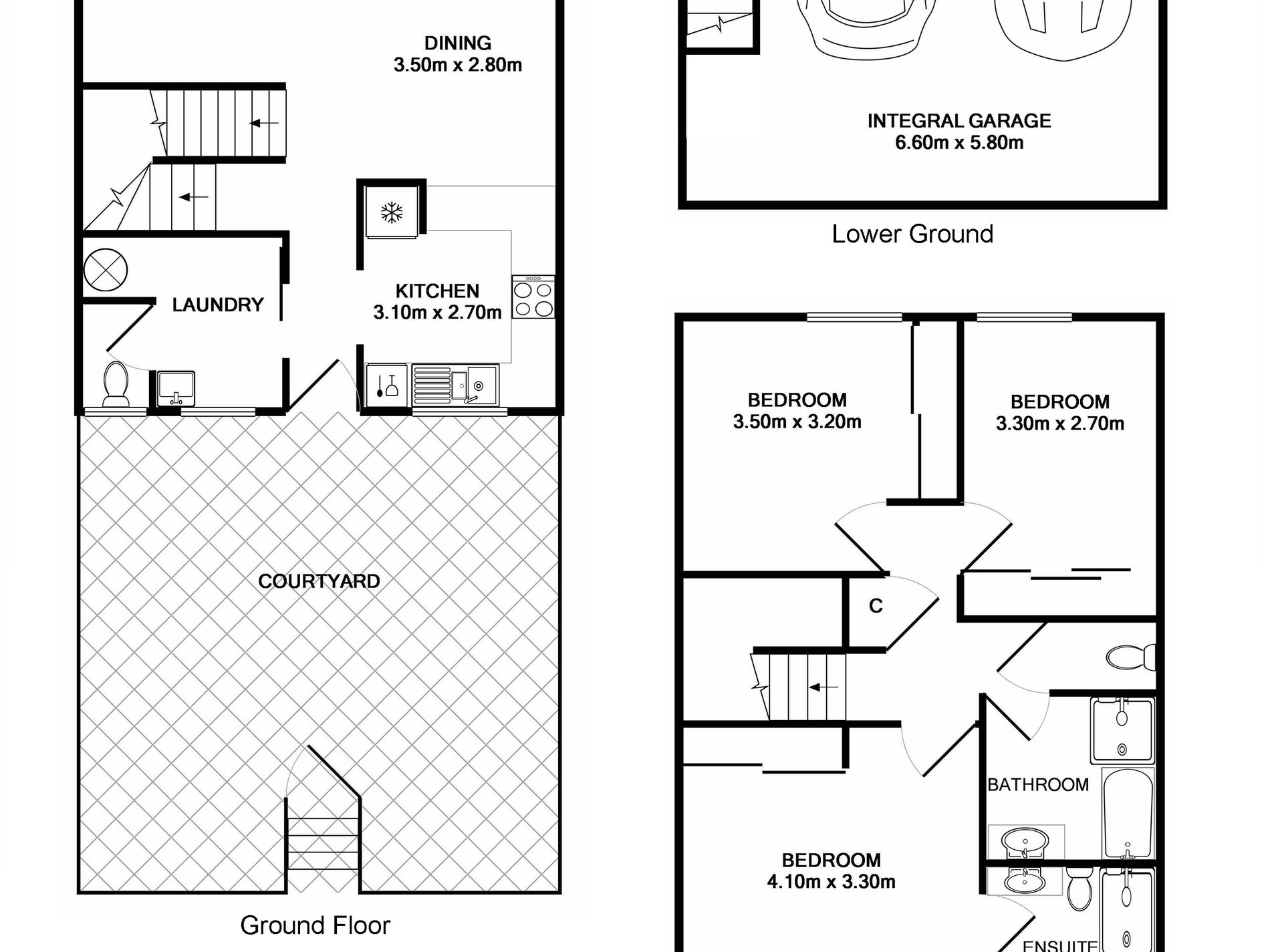
This 3 bedroom, 3 level townhouse has been immaculately maintained boasting modern interiors and a huge 43sqm lock up garage with internal access making it the ideal first home if a house is a bit of a stretch!! Some standout features include:
- 3 good size bedrooms (all with built-ins)
- Main bedroom with Modern en-suite
- Bright & airy open plan lounge & dining
- Updated kitchen with breakfast bar & dishwasher
- Brand new quality carpets throughout
- Freshly painted
- 2 modern bathroom facilities (3 toilets)
- Large internal laundry with adjoining toilet
- Internal access to a huge double garage (43sqm)
- Paved courtyard enjoying the afternoon sun
Total area: 197sqm
Situated only 500m to Lakemba train station & a short stroll through the arcade to vibrant Haldon Street shopping village & handy to local schools
CONTACT: Chris Wilding 0401 334 773













