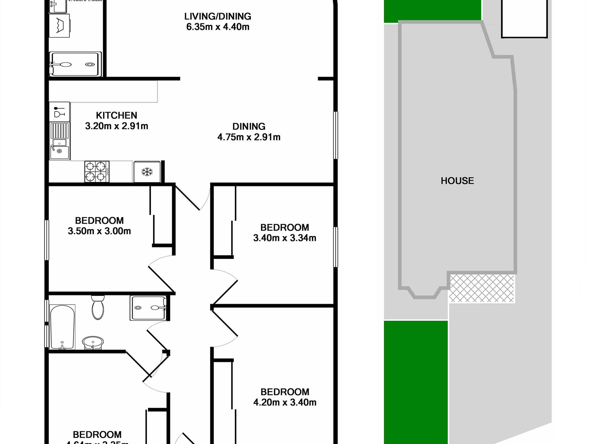
Meticulously renovated throughout is this refurbished 4 bedroom brick home oozing lifestyle through comfort and convenience. Punctuated by a clever floorplan and modern interiors, some standout features include:
- 4 bedrooms (all with built-ins)
- Newly polished timber floors throughout
- Ultra modern kitchen with stone benchtops and stainless steel appliances
- Renovated 2-way bathroom that can convert to ensuite facility
- Large open living areas
- Sun drenched North-facing patio overlooking tranquil rear yard
- Oversized laundry facility with second shower and toilet
- Fully insulated and new electrical throughout
- Versatile drive through garage with remote control
- Land is 486.9sqm approx.
Nestled in amongst quality homes and only minutes stroll to Earlwood's ever popular cafe set, boutiques, schools and shopping precinct. A complete package that is sure to be popular.
CONTACT: Chris Wilding 0401 334 773



















